Pennywell Fields

Pennywell Fields

Early 2025 an exciting and exclusive development of 6 brand new houses.

1 x 2 bed semi detached; 1 x 3 bed semi detached; 3 x 3 bed detached; 1 x 4 bed detached.
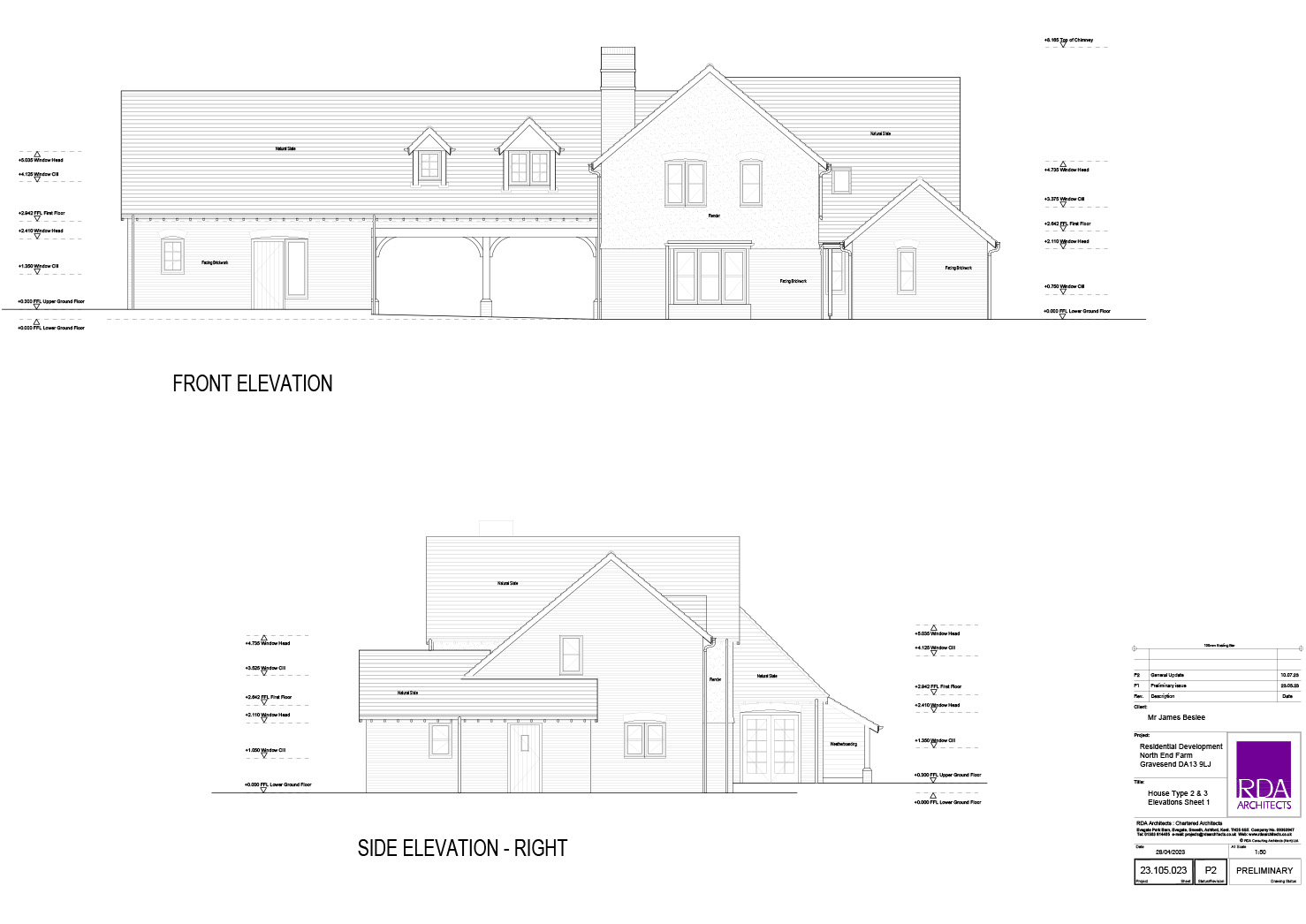
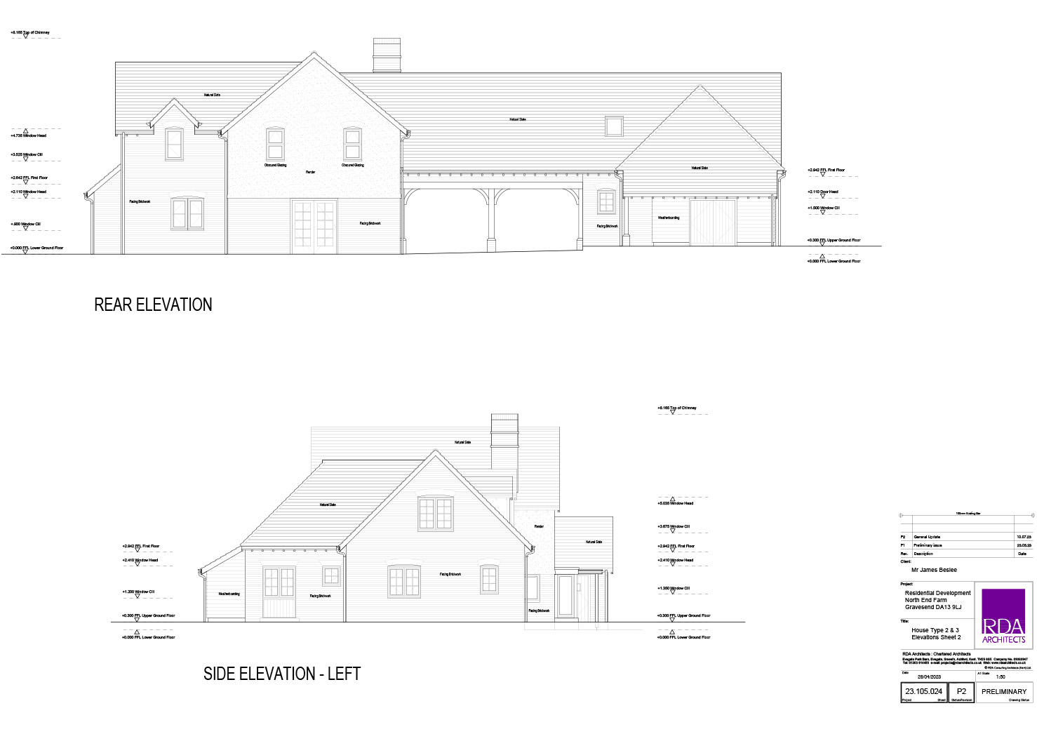
Either side are converted farm buildings and Oast houses and the development is designed to blend in with its rural and former farmyard surroundings, each house having its own individual appearance.
 
All houses are built from yellow stock bricks with red brick arches over windows and doors and have first grade Spanish slate roofs and some have part rendered facades. Five houses come with attached Oak frame car ports (except plot 4). Four of the 6 six houses (plots 3,4,5&6) have feature brick fire places to suit log burners.

Our Plots, Plans & Drawings

Plot 1

Plot 2 & 3

Plot 4

Plot 5

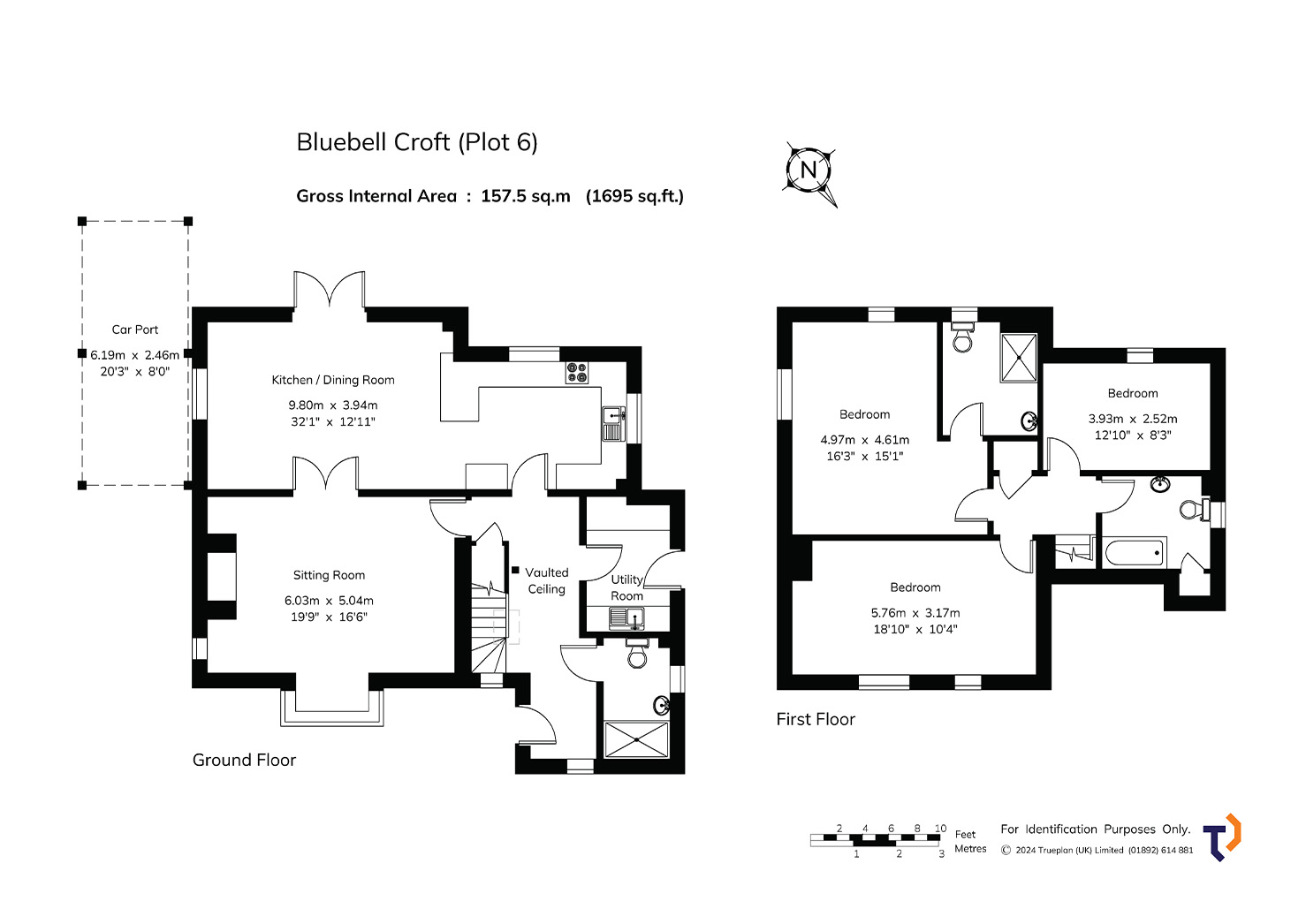
Plot 6

Specifications

Plot
Approx Sq. m
Approx Sq. ft
Beds
Sale Value
Type
Plot 1
127
1,367
3
£615,000
Detached
Plot 2 - Reserved
115
1,238
2
-
Semi-Detached
Plot 3 - Reserved
158
1,701
3
-
Semi-Detached
Plot 4
154
1,658
3
£700,000
Detached
Plot 5
210
2,260
4
£925,000
Detached
Plot 6 - Reserved
159
1,711
3
-
Detached

Eco Friendly, High Quality Builds

We endeavour to make each house as eco-friendly as possible and try to go above and beyond that which is expected by Building Control, with an emphasis on sustainability throughout the build process. We specialise in finding and buying land with or without planning permission and have experience in the planning process having successfully obtained permission in Green Belt, Farmyard schemes and garden land. If you think you may have a piece of land with development potential please feel free to contact us for planning advice and/or land acquisition. We offer a 10 year Buildzone Warranty with all our developments.